High Park Residence
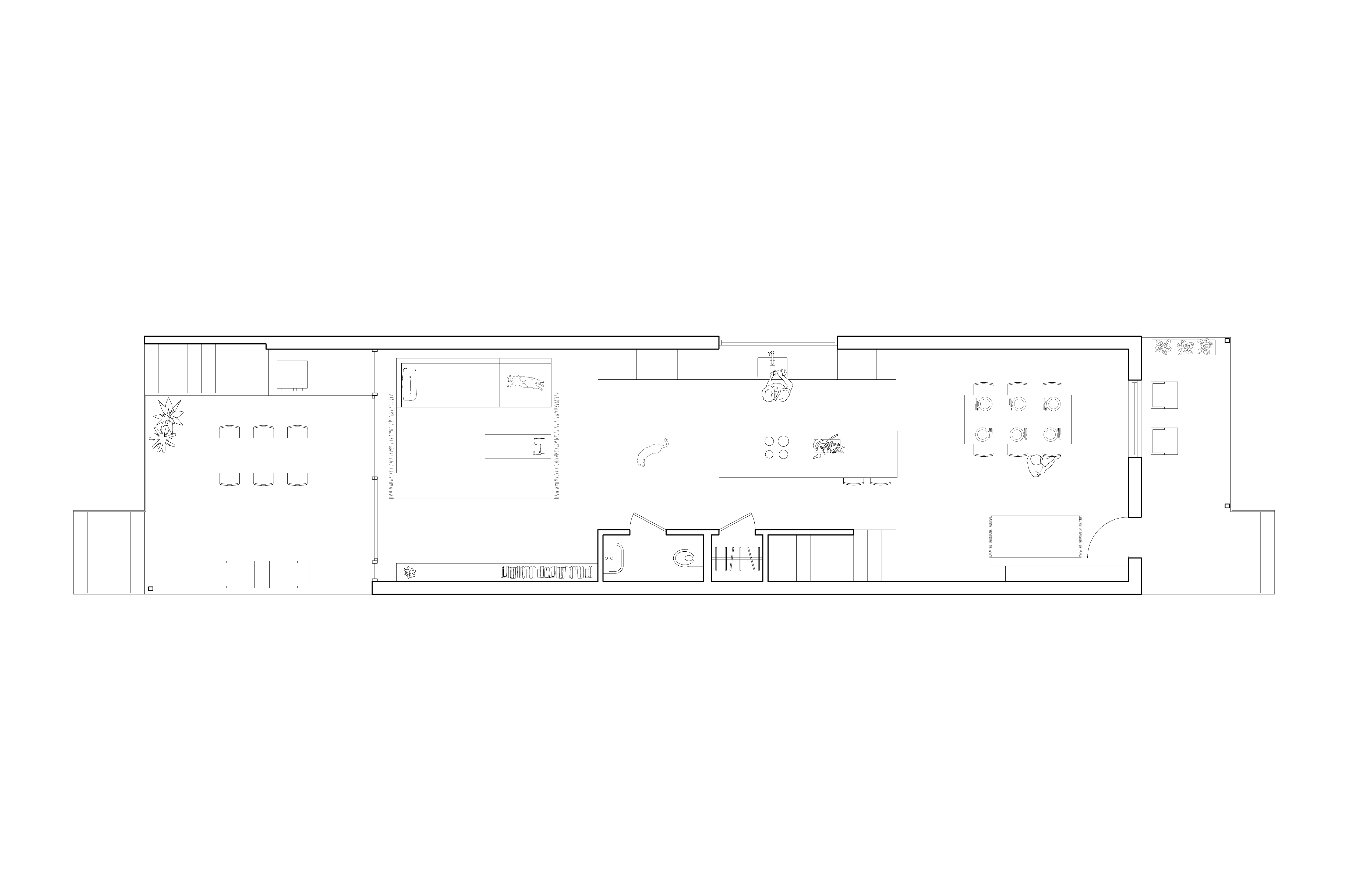
The original Victorian layout of this home is reimagined as a fresh abode featuring impeccable details with a twist. The kitchen is opened up and illuminated by a new integrated window for the backsplash. The central water closet and staircase are elegantly nestled in white oak slat panelling. The play of revealing and concealing in all matte materials creates a sophisticated and calm atmosphere.
Renovation - Completed
Toronto
2023
